

ID : AA037392
Amesta Living – Cluster Neyra merupakan kawasan hunian modern yang dikembangkan oleh Intiland bekerja sama dengan PT. Abdael Nusa, dua pengembang terpercaya yang dikenal akan kualitas bangunan dan perencanaan kawasan yang matang. Berlokasi strategis di Surabaya Timur, Cluster Neyra hadir sebagai hunian eksklusif dengan konsep nyaman, fungsional, dan berorientasi pada gaya hidup keluarga urban masa kini. Perpaduan desain modern, kualitas material premium, serta lokasi yang sangat strategis menjadikan Amesta Living – Cluster Neyra sebagai pilihan ideal untuk tempat tinggal sekaligus investasi bernilai tinggi.
Untuk menunjang kenyamanan dan kualitas hidup penghuninya, Amesta Living – Cluster Neyra menghadirkan berbagai keunggulan dan fasilitas yang dirancang secara optimal, antara lain:
Lingkungan cluster tertata rapi dan nyaman
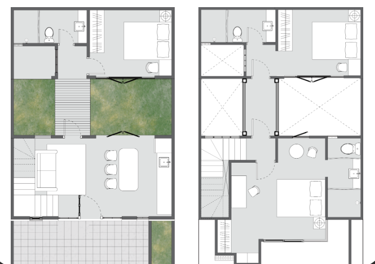
Desain rumah modern dengan tata ruang efisien
Kualitas bangunan dari developer ternama
Cocok untuk hunian keluarga maupun investasi jangka panjang
Kawasan berkembang dengan potensi kenaikan nilai properti
Suasana lingkungan yang aman dan eksklusif
Salah satu nilai utama Amesta Living – Cluster Neyra adalah kemudahan akses ke berbagai titik penting di Surabaya dan sekitarnya:
Selangkah ke OERR & MERR
± 5 menit ke Tol Tambak Sumur
± 10 menit ke Bandara Internasional Juanda
± 12 menit ke UIN Sunan Ampel, UK Petra, UBAYA, UPN, dan RS Mitra Keluarga
± 15 menit ke Galaxy Mall, Hokky Supermarket, dan East Coast Mall
Akses yang cepat ini sangat menunjang mobilitas penghuni untuk aktivitas kerja, pendidikan, hingga gaya hidup.
Pondasi: Mini pile, sloof beton bertulang
Dinding: Bata ringan, diplester, diaci, dan dicat
Kamar mandi: Finishing keramik
Lantai utama: Granite tile 60x60
Lantai teras: Keramik
Lantai tangga: Granite tile 60x60
Rangka atap: Light steel
Penutup atap: Genteng beton flat
Plafond: Hollow galvalum, gypsum board, & GRC board
Saniter: Kloset duduk, wastafel, kran, dan shower
Wujudkan hunian impian Anda di kawasan strategis Surabaya Timur. Segera hubungi kami untuk informasi lengkap unit, promo terbaru, dan jadwal kunjungan lokasi Amesta Living – Cluster Neyra. Harga dan ketersediaan unit dapat berubah sewaktu-waktu.


A&A Indonesia merupakan perusahaan agen properti sejak tahun 2006 yang berpengalaman dalam membantu proses transaksi, mulai dari pencarian properti, negosiasi, hingga pendampingan legalitas. Budaya Kerja kami adalah FAMILY dengan menjunjung tinggi keyakinan (Faithful), saling menghargai (Appreciate), berpikiran terbuka dan positif (Mindset Positive), berintegritas tinggi (Integrity), mengindahkan rasa peduli (Love), serta bergerak dinamis dan inovatif mengikuti arus perkembangan (Youth).
A&A Indonesia juga mengembangkan situs jual beli properti yang menyediakan berbagai pilihan properti dijual dan disewakan di berbagai wilayah Indonesia. Melalui situs ini, pengguna dapat menemukan rumah, tanah, apartemen, hingga properti komersial yang mudah dicari sesuai kebutuhan hunian maupun investasi.